一、概述
气动调节/切断衬里O型球阀(气动衬氟球阀)是由气动执行机构,衬里球阀和定位器(电磁阀)组成,接受4-20mADC或24VDC控制信号,对工艺管路的介质实现比例调节或二位开关控制。它是一种旋转类的防腐蚀球阀,与流体接触的阀体内壁和金属阀内件均衬一层防腐蚀材料,具有极强的耐腐蚀性能,用于控制强腐蚀性介质流体,与执行机构连接尺寸符合ISO5211标准,可方便与各种气动执行机构配套,结构简单、性能优越、维修方便、安全可靠。
二、特点
1. 采用氟塑料衬里层的球阀,具有极高的化学稳定性,可以使用在任何强腐蚀性化学介质;
2. 采用全通径、浮动球结构,阀门可在整个压力范围内进行无泄漏关闭,更便于管路系统的通球扫线和管路维护;
3. 启闭件球体和阀杆铸锻成一体,杜绝了由于压力变化一起阀杆冲击承压内的可能性,从根本上保证了使用中的安全性;
4. 结构紧凑合理,阀体内腔空间最小,减少介质滞留,另外特殊的模压工艺,使密封面致密度良好,加之人字形密封填料组合,阀门密封性良好;
三、主要技术参数性能规范
G、衬里材料特性
|
衬里材料名称 |
适用介质 |
适用温度范围 |
|
聚四氟乙丙烯(F46) |
有机溶剂、稀或浓无机酸、碱、醇、酮、芳烃、氯化烃等 |
≤150℃ |
|
可溶性聚四氟乙烯(PFA) |
有机溶剂、稀或浓无机酸、碱、醇、酮、芳烃、氯化烃等 |
≤180℃ |
|
聚三氟乙烯(F3) |
有机溶剂、无机腐蚀液(氧化性酸类) |
≤120℃ |
|
聚二氟乙烯(F2) |
耐绝大多数化学介质和溶剂 |
≤120℃ |
|
增强聚丙烯(FRPP) |
无机盐类的水溶液、无机酸类、碱类的稀或浓溶液 |
≤120℃ |
|
改性聚烯烃(PO) |
各种浓度的酸、碱、盐及某些有机溶剂 |
≤110℃ |
|
超高分子量聚乙烯(PE) |
各种腐蚀性介质(酸、碱、盐,但氧化性酸除外) |
≤100℃ |
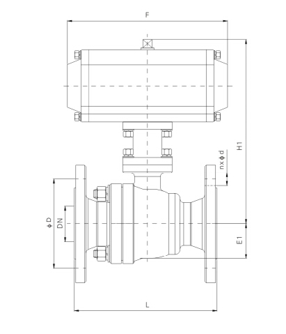
四、Q6S(D)41F46/F4/PFA气动调节、切断衬里O型球阀外形尺寸(气动衬氟球阀)

浙公网安备 33032602100169号